Обяви За нас Контакти
Продава ОФИС
град Пловдив, Христо Смирненски
81 400 €
159 204.56 лв.

(2 200 €, 4 302.83 лв./m2)
Цената е с включено ДДС
История на цената
Коригирана в 9:21 на 27 ноември, 2025 год.
Обявата е посетена 1316 пъти.
Площ:
37 m2
Етаж:
Партер от 6
Строителство:
Тухла, Въведен в експлоатация 2024 г.

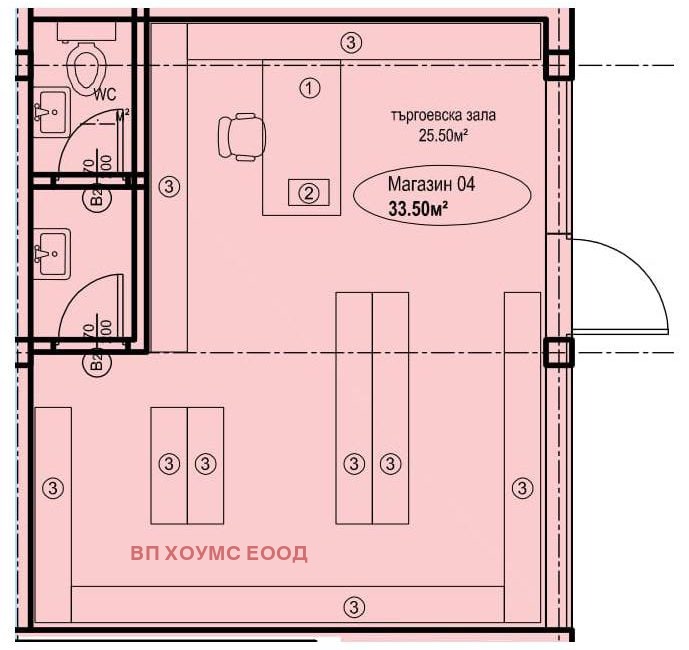
Описание на имота:


Търговската площ се намира в новоизградена жилищтна сграда с АКТ 16 от 2024г.Разположена на партерен етаж от шест етажа в сградата. Партерния етаж се намират както търговските площи и гаражи. Помещението разполога с търговска част, складово помещене и WC.
Особености
Тухла
За контакт:
0892 43 00 02

Този имот се предлага само на частни лица
Строителна фирма:
ВП ХОУМС ЕООД
0892 43 00 02
ВП ХОУМС ЕООД logo
Медал за прослужено време
В imot.bg от 2018 г.
pashov-buildings.imot.bg
Адрес:
област Пловдив, гр. Пловдив, Никола Вапцаров 69
http://www.pashov-buildings.com
ИЗПРАТИ ЗАПИТВАНЕ
ИЗПРАТИ ЗАПИТВАНЕТО

Продава ОФИС
град Пловдив, Христо Смирненски
Обява: 1g174437691978007

81 400 €
159 204.56 лв.
История на цената
(2 200 €, 4 302.83 лв./m2)

Цената е с включено ДДС
ЗАПАЗИ ОБЯВАТА

Местоположение: град Пловдив, Христо Смирненски

Допълнителни данни за имотите в района и сравнение с други райони

Покажи

Период

и 2 месеца

* Средните цени са определени чрез медианна стойност